Sesto piano
Quinto piano
Quarto piano
Terzo piano
Secondo piano
Primo piano
Piano terra
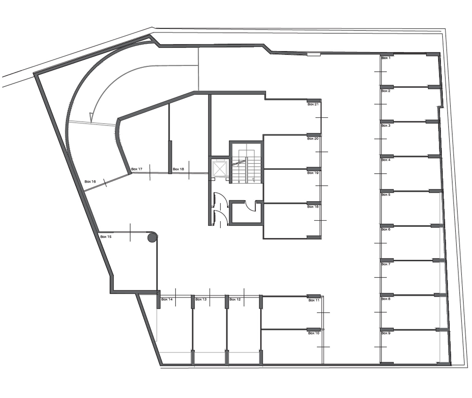
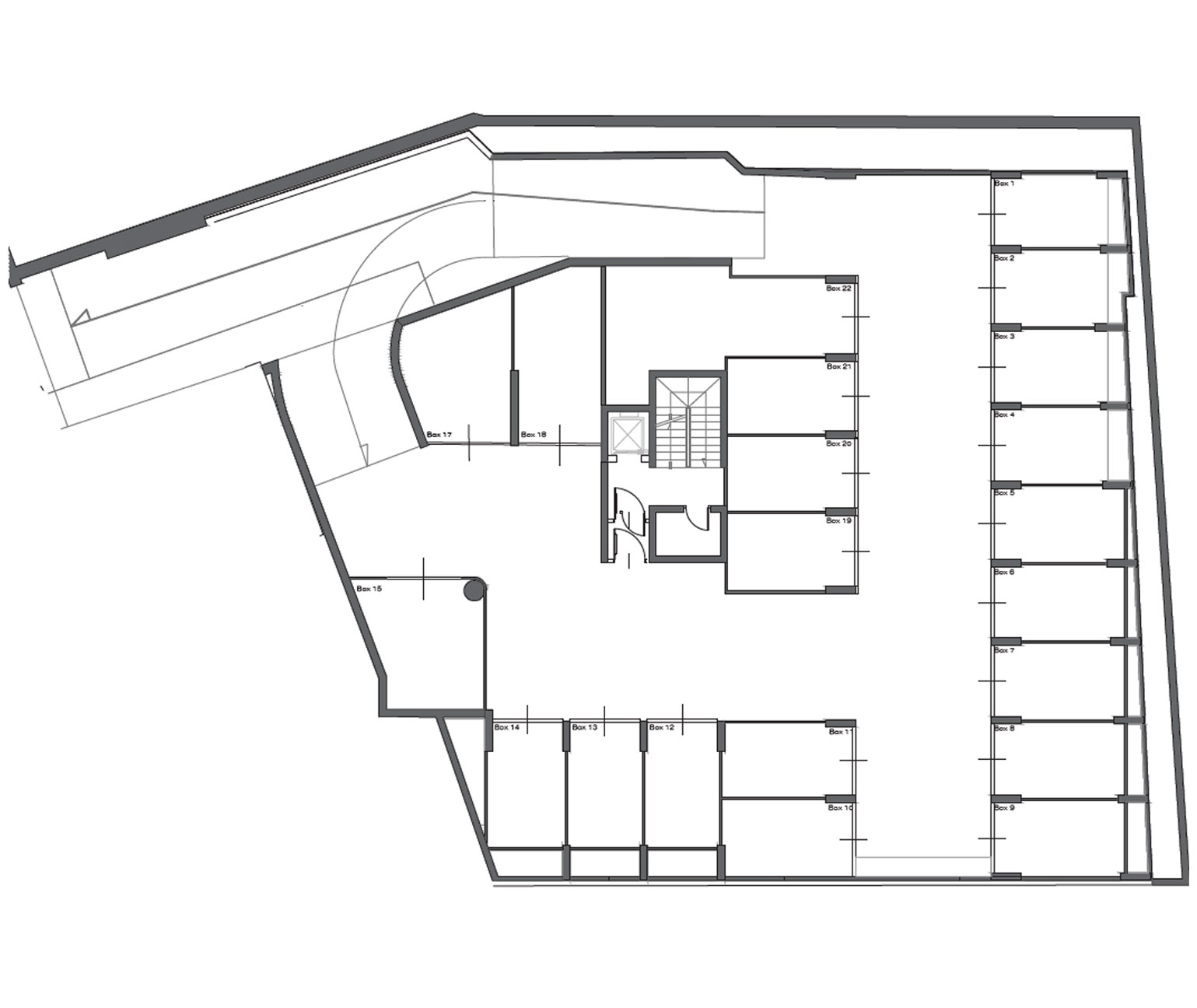
Piano interrato -1
Piano interrato -2
Fullscreen Overlay
Scopri le planimetrie